CAPÍTULO 9. CONEXIONES Y ACCESOS A LAS CARRETERAS

(Formato PDF)

 

9.1 GENERALIDADES.

Las entradas y las salidas en una carretera se pueden establecer con otras carreteras o con otro tipo de vías. A efectos de aplicación de la presente Norma, se distingue entre:

Para la distinción entre las conexiones y los accesos deberá tenerse en cuenta que tienen la consideración de carreteras las vías relacionadas en el apartado 2.7.

A efectos de aplicación de esta Norma serán consideradas como conexiones las entradas y salidas en una carretera de:

En vías de conexión (apartado 2.7) y en elementos que materialicen movimientos de entrada y salida (Tabla 9.1) en el tronco de una carretera no se permitirán conexiones ni accesos, con las siguientes excepciones:

En las conexiones y en los accesos deberán existir las visibilidades requeridas (apartado 3.2), describiéndose sus elementos en el Capítulo 8.

En las conexiones y en los accesos de una carretera será necesario determinar su incidencia en el nivel de servicio de la carretera a la que se accede, mediante estudios que tengan en cuenta los planes y proyectos de ampliación, mejora y modificación, así como cualquier obra en dicha carretera, previstos por su organismo titular para un período de diez (10) años. Si la conexión o el acceso se establecen con una vía complementaria para regulación de accesibilidad y movilidad se determinará además la incidencia en la carretera principal y en las conexiones entre ambas.

No se diseñarán nuevas conexiones y nuevos accesos ni se modificarán aquellos existentes en carreteras en las que, en la hora de proyecto del año horizonte, sea previsible que su nivel de servicio disminuya hasta ser igual o inferior al mínimo especificado en la Tabla 7.1. Tampoco se diseñarán conexiones o accesos en carreteras en las que sea previsible una disminución de su nivel de servicio en más de un escalón en la hora de proyecto del año horizonte, salvo que estén proyectados por el organismo titular de las carreteras afectadas y el nivel de servicio previsto en dicha hora de proyecto no sea inferior al mínimo especificado en la Tabla 7.1.

Las exigencias del párrafo anterior no serán aplicables, en general, donde las conexiones o los accesos (nuevos o modificaciones de existentes) no tengan una incidencia significativa en el nivel de servicio de la carretera afectada. Se establece que una incidencia no es significativa cuando el incremento estimado en la intensidad horaria que se genere en la carretera afectada por conexiones o accesos, sea menor que el cinco por ciento (< 5 %) de la correspondiente al sentido de circulación al que se accede. A estos efectos, deberá considerarse la intensidad horaria en las diferentes horas punta que puedan producirse en el tráfico de dicha carretera. Deberá tenerse en cuenta la posibilidad de que otras actuaciones sobre conexiones o accesos pueda suponer acumuladamente una incidencia significativa.

Para proyectar nuevas conexiones y nuevos accesos en carreteras (o en modificaciones de los existentes) en las que previsiblemente el nivel de servicio disminuya en más de un escalón o sea inferior o igual al mínimo especificado en la Tabla 7.1, se deberán realizar, de forma previa o simultánea, actuaciones adicionales de aumento de capacidad en dichas carreteras.

También será exigible la aplicación de las condiciones de esta Norma a aquellas conexiones y aquellos accesos que sean objeto de reordenación o experimenten un cambio de uso. No obstante, en los proyectos de reordenación de conexiones y accesos el organismo titular de la carretera podrá admitir características inferiores a las especificadas en la presente Norma (tanto en distancias como en tipología), siempre que un análisis de la solución propuesta determine que la nueva configuración de dichas conexiones y de dichos accesos mejore la situación anterior desde el punto de vista de la seguridad vial.

En apartados posteriores se indican las distancias que deben cumplirse entre conexiones y accesos. Estas distancias mínimas no serán de aplicación entre las entradas y salidas de una misma intersección.

9.1.1 MANIOBRAS DE GIRO A LA DERECHA.

Para pasar de una carretera a otra (conexiones) o a una vía o a un tramo (accesos), es necesario, en general, la interposición de una o varias vías de conexión (ramales de enlace, vías de giro, ramales de transferencia o calzadas anulares) y de los elementos que permitan materializar los movimientos de entrada o salida para posibilitar la maniobra de giro a la derecha a una carretera, que ordenados según la mayor ocupación espacial que generan, son los siguientes:

En epígrafes posteriores se fijan las distancias mínimas exigibles entre entradas o salidas consecutivas, que se medirán siempre entre las secciones características (inicial o final) más próximas en el sentido de la marcha (apartado 8.2).

En la Tabla 9.1 se indican los elementos básicos que permiten materializar los movimientos de entrada o salida en función de la clase de carretera a la que se accede, su velocidad de proyecto y su IMD. Cuando en dicha Tabla se indica el empleo de envolventes de giro se ha supuesto que la velocidad en el acceso correspondiente es la de maniobra. (Epígrafe 8.2.3, caso (a) en las Figuras 8.4 y 8.5).

En atención a las posibles singularidades del tramo donde se proyecte una conexión o un acceso y de las características que éstos tengan (IMD de la conexión o del acceso, porcentaje de vehículos pesados, accidentalidad, etc.), el organismo titular de la carretera podrá decidir que el elemento que materialice la maniobra de giro a la derecha tenga mejores características que el que se obtiene por aplicación directa de la Tabla 9.1.

En carreteras de calzadas separadas no se admitirán conexiones con carriles de cambio de velocidad o carriles de convergencia y divergencia en el lado izquierdo de la calzada, debiéndose tratar como confluencias y bifurcaciones. Si existiese más de una calzada por sentido, este criterio se aplicará en el lado izquierdo de las calzadas centrales.

 

TABLA 9.1. ELEMENTOS BÁSICOS PARA MATERIALIZAR MOVIMIENTOS DE ENTRADA Y SALIDA EN CONEXIONES Y ACCESOS.

 

9.1.2 MANIOBRAS DE GIRO A LA IZQUIERDA.

En autopistas y autovías las maniobras de giro a la izquierda para conectar con otras vías se realizarán siempre a distinto nivel.

En carreteras multicarril las maniobras de giro a la izquierda no se realizarán a nivel, salvo que se efectúen mediante glorietas.32 En sus tramos urbanos dichas maniobras se podrán también efectuar en intersecciones reguladas por semáforos.

32 Las maniobras de giro a la izquierda en glorietas serán admisibles para cualquier valor de la IMD de la carreterao.

En carreteras convencionales o en vías de servicio de doble sentido en las que exista una separación física entre ambos sentidos de circulación no se permitirán maniobras de giro a la izquierda excepto, justificadamente, en travesías.

En carreteras convencionales o vías de servicio de doble sentido en las que existan conexiones o accesos donde no esté permitida la maniobra de giro a la izquierda, se estudiará la necesidad de disponer una conexión de cambio de sentido con objeto de no incrementar el tiempo de recorrido para realizar esta maniobra en más de cinco ( 5) minutos.

En la Tabla 9.2 se establecen las reglas para disponer carriles centrales de almacenamiento y espera (apartado 8.3) para maniobras de giro a la izquierda en función de la velocidad de proyecto del tramo de la carretera convencional o de la vía de servicio de doble sentido donde se ubica la intersección y de su IMD.

Cuando la IMD de dicho tramo sea mayor o igual que mil ( 1 000) vehículos/día, se realizará un estudio de tráfico que analice las intensidades horarias de las carreteras o vías conectadas por la intersección, estime el tamaño del hueco disponible en las corrientes de tráfico que resulta necesario cruzar y, consecuentemente, las demoras. En función de dichas demoras se dimensionará el tramo de almacenamiento y espera para albergar a los vehículos que previsiblemente deban detenerse, tanto antes de iniciar la maniobra de giro a la izquierda hacia la intersección como después de incorporarse tras la maniobra de giro a la izquierda desde la intersección. En cualquier caso, dicha longitud será mayor o igual que veinte metros ( 20 m).

Cuando la IMD de dicho tramo sea menor que tres mil (< 3 000) vehículos/día, se podrá sustituir el carril central de deceleración y el tramo de almacenamiento, formado por una cuña (o cuña reducida) para maniobra de giro a la izquierda hacia la intersección desde la carretera convencional o vía de servicio de doble sentido, por un cayado o por una glorieta partida.

En atención a las posibles singularidades del tramo donde se proyecte una conexión o un acceso y de las características que éstos tengan (IMD de la conexión o del acceso, porcentaje de vehículos pesados, existencia de planes o proyectos de mejora, accidentalidad, etc.), el organismo titular de la carretera podrá exigir que el elemento que materialice la maniobra de giro a la izquierda tenga mejores características que el que se obtiene por aplicación directa de la Tabla 9.2.

 

TABLA 9.2. MANIOBRAS DE GIRO A LA IZQUIERDA EN CARRETERAS CONVENCIONALES Y EN VÍAS DE SERVICIO DE DOBLE SENTIDO.

 

33 A efectos de esta Norma se entenderá que la actividad económica genera en el acceso importantes tráficos si su IMD es superior a treinta (> 30) vehículos/día o la intensidad de la hora punta es superior a cinco (> 5) vehículos/hora.

9.2 CONEXIONES EN AUTOPISTAS, AUTOVÍAS Y CARRETERAS MULTICARRIL.

En autopistas, autovías y carreteras multicarril no se establecerán accesos, aunque podrán ser canalizados a través de vías de servicio.

En el tronco de autopistas podrán disponerse conexiones con:

En el tronco de autovías podrán disponerse conexiones con:

34 Apartado 2.7

En carreteras multicarril podrán disponerse, además de las conexiones permitidas en autovías, las generadas por la existencia de glorietas o de intersecciones reguladas por semáforos.

En carreteras de calzadas separadas las conexiones se resolverán (Tabla 9.1) mediante carriles de cambio de velocidad, admitiéndose cuñas de cambio de velocidad en las carreteras multicarril con velocidades de proyecto menores o iguales que setenta kilómetros por hora (≤ 70 km/h).

9.2.1 VÍAS COLECTORAS - DISTRIBUIDORAS, RAMALES DE ENLACE Y RAMALES DE TRANSFERENCIA.

9.2.1.1 CONDICIONES DE UTILIZACIÓN.

Las conexiones de una vía colectora - distribuidora o de un ramal de enlace con el tronco de una carretera se efectuarán mediante:

Si fuese necesario efectuar una conexión intermedia entre vía colectora - distribuidora y tronco esta se llevará a cabo mediante ramales de transferencia (apartado 8.14).

El tipo de conexión de un ramal de enlace con otro ramal de enlace o con una vía colectora - distribuidora se obtendrá de la Tabla 9.1, considerando el ramal de enlace o la vía colectora - distribuidora en la que se efectúa la conexión como una carretera convencional con su correspondiente velocidad de proyecto . La longitud del carril o cuña de cambio de velocidad se estimará según lo indicado en los epígrafes 8.2.1 y 8.2.2.

En las vías colectoras - distribuidoras, en los ramales de enlace y en los ramales de transferencia no se dispondrán accesos ni se conectarán vías de servicio, salvo en los casos indicados en el epígrafe 9.2.3.2.

9.2.1.2 DISTANCIAS.

Las conexiones consecutivas de vías colectoras - distribuidoras y de ramales de enlace dotados de carriles de cambio de velocidad (o en su caso, de carriles de convergencia o divergencia) con el tronco de una carretera, medidas entre secciones características, cumplirán que:

En un ramal de un enlace (Figuras 9.1 a y b) la distancia entre su salida (o su entrada) al tronco y la conexión más próxima con dicho ramal será como mínimo de doscientos cincuenta metros ( 250 m).

En una vía colectora - distribuidora (Figuras 9.1 c y 9.2 b) la distancia entre su salida del tronco y la primera conexión con dicha vía será como mínimo de doscientos cincuenta metros ( 250 m). Igual distancia (Figuras 9.1 c y 9.3 b) deberá haber entre la última conexión a la vía colectora - distribuidora y su entrada al tronco. Si existiera una vía de servicio, no se podrá conectar a la vía colectora - distribuidora (con la excepción indicada en el epígrafe 9.2.3.2).

En una vía colectora - distribuidora (Figura 9.5 a), la distancia entre dos conexiones consecutivas será como mínimo de doscientos cincuenta metros ( 250 m). En este caso y sin perjuicio de otras limitaciones, podrán unirse la entrada y la salida posterior (Figura 9.5 b) mediante un carril de trenzado adosado a la vía colectora - distribuidora con una longitud mínima de doscientos cincuenta metros35 ( 250 m) medida entre secciones características de un metro (1,00 m). Si las dos conexiones consecutivas corresponden al ramal de salida y al ramal de entrada posterior del mismo enlace la distancia anterior podrá reducirse hasta un valor mínimo de ciento veinticinco metros ( 125 m).

35 Salvo justificación en contrario.

A las conexiones con el tronco de los ramales de transferencia se les aplicarán las distancias indicadas en los puntos anteriores de este epígrafe para conexiones consecutivas en el tronco, con las siguientes consideraciones adicionales:

 

FIGURA 9.1. DISTANCIAS ENTRE ENTRADA Y SALIDA CONSECUTIVAS DE RAMALES DE ENLACE Y
DE VÍAS COLECTORAS - DISTRIBUIDORAS.

 

 

FIGURA 9.2. DISTANCIA ENTRE SALIDAS CONSECUTIVAS DE RAMALES DE ENLACE Y DE VÍAS
COLECTORAS - DISTRIBUIDORAS.

 

 

FIGURA 9.3. DISTANCIA ENTRE ENTRADAS CONSECUTIVAS DE RAMALES DE ENLACE Y DE VÍAS
COLECTORAS - DISTRIBUIDORAS.

 

 

FIGURA 9.4. DISTANCIAS ENTRE SALIDA Y ENTRADA CONSECUTIVAS DE RAMALES DE ENLACE Y
DE VÍAS COLECTORAS - DISTRIBUIDORAS.

 

 

FIGURA 9.5. DISTANCIAS ENTRE ENTRADA Y SALIDA CONSECUTIVAS DE RAMALES DE ENLACE
EN VÍAS COLECTORAS - DISTRIBUIDORAS.

 

9.2.2 VÍAS DE SERVICIO, ÁREAS DE SERVICIO Y ÁREAS DE DESCANSO.

9.2.2.1 CONDICIONES DE UTILIZACIÓN.

Las vías de servicio permitirán el acceso de las propiedades colindantes a autopistas, autovías y carreteras multicarril.

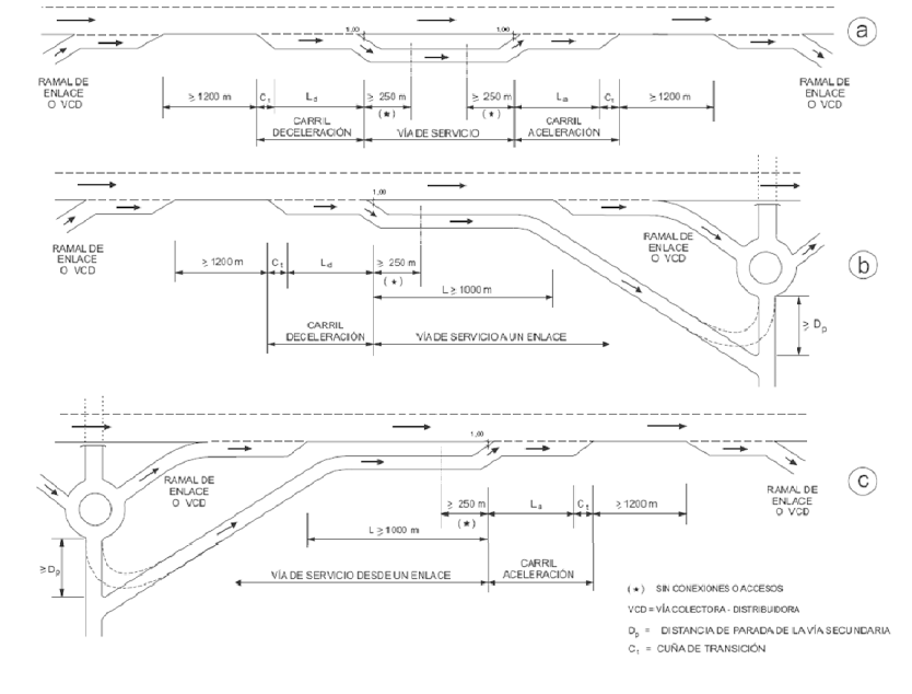
Las vías de servicio se conectarán con las autopistas únicamente a través de enlaces (Figura 9.6), sin que se puedan conectar a su tronco, a sus ramales de enlace y a sus vías colectoras - distribuidoras.

Las vías de servicio se conectarán con las autovías generalmente a través de enlaces (Figura 9.6), sin que se puedan conectar, salvo las excepciones descritas en esta Norma, ni a sus ramales de enlace ni a sus vías colectoras - distribuidoras.

Las vías de servicio se conectarán con las carreteras multicarril generalmente a través de nudos.

En los proyectos de reordenación de conexiones y accesos de autovías y carreteras multicarril, el organismo titular de la carretera podrá admitir como excepciones las conexiones directas de la vía de servicio con el tronco, cuando se den las siguientes circunstancias:

El inicio y el final de una vía de servicio de una autovía que ni comience ni finalice en un nudo se efectuará mediante:

Las vías de servicio de ambas márgenes en autopistas o autovías se podrán conectar utilizando vías que, cruzándolas a distinto nivel, se unan con dichas vías de servicio mediante intersecciones o enlaces.

Las condiciones exigibles a las conexiones intermedias de las vías de servicio con autovías y carreteras multicarril y las excepciones para conectar dichas vías con ramales de enlace y con vías colectoras - distribuidoras se indican en el epígrafe 9.2.3.

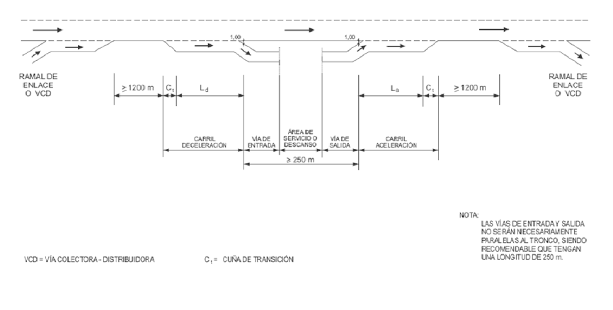
Las entradas y salidas de las áreas de servicio (de concesión administrativa) y de las áreas de descanso (que a efectos de esta Norma son consideradas conexiones -apartado 9.1-) se efectuarán siempre con el tronco de las autopistas y autovías sin que puedan efectuarse a través de ramales de enlace, vías colectoras - distribuidoras y vías de servicio. Si existiese un área de servicio o un área de descanso y posteriormente fuese necesario disponer una vía colectora - distribuidora esta podrá conectarse (con carácter excepcional) con las citadas área de servicio o área de descanso.

 

FIGURA 9.6. CONEXIÓN DE VÍAS DE SERVICIO A TRAVÉS DE ENLACES.

 

9.2.2.2 DISTANCIAS.

En áreas de servicio o áreas de descanso (en autopistas y autovías) y donde, no existiendo otra alternativa, se admitan conexiones específicas de vías de servicio con el tronco de las autovías y de las carreteras multicarril (en ningún caso autopistas), se cumplirán:

En relación con las longitudes de las vías de entrada y salida de las áreas de servicio y áreas de descanso (Figura 9.8) derivadas de las dos últimas condiciones, será admisible su disminución cuando la distancia entre la salida hacia la vía de entrada al área de servicio o área de descanso y la entrada desde la vía de salida posterior del área de servicio o área de descanso sea como mínimo de doscientos cincuenta metros ( 250 m). Se disminuirá, en su caso, la longitud de la vía de salida con preferencia a la de la vía de entrada.

Las distancias relativas a conexiones y accesos en la propia vía de servicio se especifican en el apartado 9.4 y en el epígrafe 9.5.2, respectivamente.

 

FIGURA 9.7. CONEXIONES ESPECÍFICAS DE VÍAS DE SERVICIO CON EL TRONCO DE AUTOVÍAS.

 

 

FIGURA 9.8. CONEXIONES ESPECÍFICAS DE ÁREAS DE SERVICIO Y DE ÁREAS DE DESCANSO CON EL TRONCO DE AUTOPISTAS Y AUTOVÍAS.

 

9.2.3 TRAMOS URBANOS Y PERIURBANOS.

En tramos urbanos y periurbanos de carreteras se requiere prestar especial atención a la funcionalidad de los elementos que, sirviendo al tronco, permiten alcanzar un equilibrio entre movilidad y accesibilidad y que son los siguientes:

En los epígrafes 9.2.3.1 a 9.2.3.4 se relacionan los criterios que podrán ser utilizados en tramos urbanos y periurbanos de autovías y carreteras multicarril para lograr el citado equilibrio. Excepcionalmente y de forma justificada, el organismo titular de la carretera podrá también admitirlos en sus proyectos de reordenación de conexiones y accesos en tramos que no sean urbanos o periurbanos.

9.2.3.1 CONEXIONES INTERMEDIAS DE VÍAS COMPLEMENTARIAS PARA REGULACIÓN DE ACCESIBILIDAD Y MOVILIDAD CON AUTOVÍAS.

Podrán establecerse conexiones intermedias de vías de sentido único complementarias a la calzada central para regulación de accesibilidad y movilidad con el tronco de autovías en tramos urbanos y periurbanos, si permiten optimizar el reparto de los flujos de tráfico entre las distintas calzadas de acuerdo con su funcionalidad y su capacidad. Para ello deberán cumplirse las siguientes condiciones:

9.2.3.2 PLATAFORMAS COMPARTIDAS EN AUTOVÍAS.

El creciente desarrollo de la red viaria en entornos urbanos y periurbanos que produce un aumento de la complejidad de las funciones que deben desempeñar las carreteras y las importantes restricciones de espacio que generan las aglomeraciones urbanas haciendo difícil encajar sus elementos de diseño y compatibilizar sus funciones, implican ajustar las características de diseño de manera que, preservando la funcionalidad primaria de los elementos del viario, se consiga dar una respuesta más eficiente a las necesidades de la demanda.

Por ello en tramos urbanos y periurbanos se podrá permitir, de forma justificada, compartir en una misma plataforma las calzadas de los ramales de enlace y de las vías colectoras - distribuidoras con las vías de servicio, donde y cuando se cumplan, en cualquier caso, las siguientes condiciones generales:

Adicionalmente deberán cumplirse las siguientes condiciones específicas:

A) Plataforma compartida entre ramal de enlace y vía de servicio.

Donde una plataforma compartida en un tramo urbano entre un ramal de enlace y una vía de servicio entre o salga de una glorieta o intersección, la longitud del tramo de plataforma compartida será mayor o igual que cien metros ( 100 m) para el caso de que la intersección sea una glorieta o mayor o igual que doscientos cincuenta metros ( 250 m) en cualquier otro caso (Esquema en Figura 9.9). En este tramo no se permitirá ningún tipo de conexión o acceso.

Donde la conexión en un tramo urbano se realice con el tronco de una carretera mediante una convergencia o una divergencia, la longitud del tramo de plataforma compartida será mayor o igual que doscientos cincuenta metros ( 250 m) (Esquema en Figura 9.10). En este tramo no se permitirá ningún tipo de conexión o acceso.

En tramos periurbanos los anteriores criterios podrán ser aplicables, de forma justificada, cuando adicionalmente la IMD de la vía de servicio sea mayor que el diez por ciento (> 10 %) de la IMD del tronco a la que sirve dicha vía de servicio.

 

FIGURA 9.9. ESQUEMA DE PLATAFORMA COMPARTIDA ENTRE RAMAL DE ENLACE Y VÍA DE SERVICIO EN CONEXIÓN CON GLORIETA E INTERSECCIÓN.

 

 

FIGURA 9.10. ESQUEMA DE PLATAFORMA COMPARTIDA ENTRE RAMAL DE ENLACE Y VÍA DE SERVICIO EN CONEXIÓN CON UN TRONCO DE CARRETERA.

 

B) Plataforma compartida entre vía colectora - distribuidora y vía de servicio (vía lateral).

Cuando una vía complementaria para regulación de accesibilidad y movilidad tenga funciones de vía colectora - distribuidora y de vía de servicio será considerada como vía lateral respecto al tronco de la autovía. (Esquemas en Figura 9.11).

En una vía lateral las distancias entre cualquier tipo de conexión o acceso y la sección característica más cercana de la salida anterior desde el tronco o de la entrada posterior hacia el tronco deberán ser mayores o iguales que doscientos cincuenta metros ( 250 m).

Las distancias entre conexiones o accesos serán las indicadas para vías colectoras - distribuidoras, independientemente de su tipología. Cualquier conexión o acceso deberá disponer de un carril de cambio de velocidad. En los proyectos de reordenación de accesos, redactados por el organismo titular de la carretera podrán reducirse justificadamente las distancias relativas a conexiones y accesos y su tipología.

 

FIGURA 9.11. ESQUEMAS DE PLATAFORMA COMPARTIDA ENTRE VÍA COLECTORA - DISTRIBUIDORA Y VÍA DE SERVICIO (VÍA LATERAL) EN CONEXIÓN CON UN TRONCO DE CARRETERA.

 

9.2.3.3 CARRETERAS MULTICARRIL.

En carreteras multicarril las conexiones de las vías de servicio se efectuarán en las glorietas y, en el caso de tramos urbanos, también en intersecciones reguladas por semáforos. Justificadamente podrán admitirse conexiones de la vía de servicio al tronco de las carreteras multicarril de forma que se optimice el nivel de servicio de la calzada principal, las vías de servicio y las glorietas.

Serán aplicables a las carreteras multicarril, de forma justificada, las condiciones de distancia aplicables a tramos urbanos o periurbanos de autovías.

9.2.3.4 OTROS CASOS.

Si el cumplimiento de las condiciones indicadas en las Figuras 9.1, 9.2 y 9.3 pudiera conllevar unos costes desproporcionados o existiera imposibilidad física por problemas de espacio, la distancia mínima de mil doscientos metros ( 1 200 m) indicada en las Figuras 9.1 a y 9.1 b podrá reducirse hasta un valor mínimo de seiscientos metros ( 600 m) y la distancia mínima de mil metros ( 1 000 m) indicada en las Figuras 9.1 b, 9.2 a y 9.3 a podrá reducirse hasta un valor mínimo de quinientos metros ( 500 m), siempre que el funcionamiento del carril de trenzado resultante (Figura 9.1 b) y de la calzada entre las dos secciones características de las salidas consecutivas (Figura 9.2 a) o de las entradas consecutivas (Figura 9.3 a) no sobrepasare el nivel de servicio C para las intensidades de la hora de proyecto del año horizonte.

9.3 CONEXIONES EN CARRETERAS CONVENCIONALES.

9.3.1 CONDICIONES DE UTILIZACIÓN.

Las entradas y salidas de las propiedades colindantes hacia o desde carreteras convencionales se efectuarán preferentemente a través de vías de servicio que a su vez podrán conectarse con el tronco de dichas carreteras:

Si no se utilizasen vías de servicio las entradas y salidas de las propiedades colindantes se efectuarán mediante accesos (apartado 9.5).

9.3.2 DISTANCIAS.

9.3.2.1 TRAMOS INTERURBANOS.

Las conexiones con las carreteras convencionales en tramos interurbanos (incluidas las correspondientes a vías de servicio) cumplirán:

Si la entrada o la salida posterior en el sentido de la marcha correspondiera a un acceso se aplicarán las distancias indicadas en el epígrafe 9.5.1.

La Figura 9.12 muestra el esquema correspondiente a conexiones realizadas mediante carriles de cambio de velocidad y la Figura 9.13 el correspondiente a conexiones realizadas con cuñas de cambio de velocidad. En determinados casos, podrá producirse la combinación de estos dos tipos de elementos que se pueden utilizar en los movimientos de entrada y salida (Tabla 9.1).

 

TABLA 9.3. DISTANCIAS MÍNIMAS ENTRE CONEXIONES CON CARRETERAS CONVENCIONALES EN TRAMOS INTERURBANOS.

 

 

FIGURA 9.12. CONEXIONES CON CARRETERAS CONVENCIONALES MEDIANTE CARRILES DE CAMBIO DE VELOCIDAD.

 

 

FIGURA 9.13. CONEXIONES CON CARRETERAS CONVENCIONALES MEDIANTE CUÑAS DE CAMBIO DE VELOCIDAD.

 

9.3.2.2 TRAMOS URBANOS, PERIURBANOS Y TRAVESÍAS.

En tramos urbanos y periurbanos de carreteras convencionales las distancias mínimas entre una conexión y la conexión o el acceso más próximo (indicadas en las Figuras 9.12 y 9.13 y en la Tabla 9.3), serán iguales o superiores a la correspondiente visibilidad de parada del tramo y como mínimo sesenta metros ( 60,00 m) (no exigible en travesías).

En travesías de carreteras convencionales (con limitación de velocidad menor o igual que cincuenta kilómetros por hora (≤ 50 km/h)) se admitirá que las conexiones (o los accesos con viario urbano) no se materialicen con carriles o cuñas de cambio de velocidad sino con envolventes de giro (epígrafe 8.2.3), que podrán ser sustituidas por otros tipos de entradas o salidas que engloben a aquellas.

9.4 CONEXIONES DE VÍAS DE SERVICIO.

Las conexiones de las vías de servicio con autopistas, autovías y carreteras multicarril cumplirán lo indicado en el apartado 9.2.

Las conexiones de vías de servicio con carreteras convencionales cumplirán:

Las conexiones con las vías de servicio cumplirán:

Los elementos que materializarán las conexiones en vías de servicio se indican en la Tabla 9.1. En vías de servicio en tramos urbanos (y excepcionalmente periurbanos) con limitación de velocidad menor o igual que cincuenta kilómetros por hora (≤50 km/h) se admitirá que las conexiones puedan materializarse con envolventes de giro (epígrafe 8.2.3), que podrán ser sustituidas por otros tipos de entradas o salidas que engloben a aquellas. En estos tramos, la distancia mínima entre una conexión y la conexión o acceso más próximo será mayor o igual que la visibilidad de parada.

 

FIGURA 9.14. PRIMERA Y ÚLTIMA CONEXIÓN CON VÍAS DE SERVICIO EN CARRETERAS CONVENCIONALES.

 

9.5 ACCESOS DIRECTOS EN CARRETERAS CONVENCIONALES Y VÍAS DE SERVICIO.

Acceso directo, o simplemente acceso, en una carretera es la entrada o la salida a la misma desde o hacia cualquier vía o tramo que no tenga la consideración de carretera.

En un acceso, la incorporación de los vehículos hacia o desde la calzada se produce sin utilizar las conexiones con la carretera de otras vías que tengan dicha consideración.

Los accesos se clasifican en las siguientes categorías:

36 SA efectos de esta Norma se entenderá que la actividad económica genera en el acceso importantes tráficos si su IMD es superior a treinta (> 30) vehículos/día o la intensidad e la hora punta es superior a cinco (> 5) vehículos/horaalvo justificación en contrario.

El diseño de los accesos se basará en un estudio que justifique su demanda, estimando las correspondientes IMDs para un año horizonte y su composición. En dicho estudio se establecerá explícitamente el vehículo patrón (Anexo 3) que se adopta como característico para la elección de las dimensiones geométricas del acceso.

Los elementos para materializar los movimientos de entrada y salida en función de la velocidad de proyecto , de la IMD del tronco de la carretera en el año horizonte y de la categoría del acceso se indican en la Tabla 9.1.

Los accesos cumplirán los requisitos de trazado derivados de las siguientes condiciones generales:

El acceso se proyectará con una inclinación longitudinal máxima del tres por ciento (- 3 % ≤ i ≤3 %) en una longitud mayor o igual que veinticinco metros ( 25,00 m) medidos desde el borde de la calzada de la carretera a la que se accede. Las curvas de acuerdo vertical que se diseñen en la vía secundaria en la zona de entronque del acceso tendrán un parámetro (Kv) mayor o igual que cuatrocientos metros ( 400 m). Esto también será de aplicación cuando el acceso no sea inmediato (como puede ocurrir en instalaciones de servicio o propiedades directamente colindantes con la carretera o vía de servicio) y se disponga de un tramo de conexión.

9.5.1 ACCESOS EN CARRETERAS CONVENCIONALES.

En carreteras convencionales no se proyectarán accesos en los que se permita el cruce de cualquier carril o de la propia calzada cuando el nivel de servicio se reduzca por la correspondiente actuación por debajo del especificado en la Tabla 7.1. Si esto se produjera se deberán realizar:

Las distancias mínimas entre un acceso a una carretera convencional y el acceso o conexión más próximo serán las distancias entre conexiones que se indican en la Tabla 9.3.

No obstante, en el caso de accesos de caminos agrícolas (y otras vías públicas que no tengan consideración de carretera), de edificaciones residenciales aisladas o de fincas sin una actividad económica que genere importantes tráficos en el mismo y con IMD menor que mil (< 1 000) vehículos/día, podrán emplearse valores menores de los incluidos en la Tabla 9.3, siempre que la incidencia en el nivel de servicio no sea significativa. En carreteras convencionales C-100 se podrá admitir: A = 250 m, B = 100 m y C = 250 m y en carreteras convencionales C-70 y C-60: A = 125 m, B = 75 m y C = 125 m.

Donde la distancia entre una entrada y la salida posterior sea inferior a quinientos metros (< 500 m) y para una IMD del tronco de la carretera mayor o igual que mil quinientos ( 1 500) vehículos/día (carreteras convencionales C-70, C-60, C-50 y C-40) será necesario realizar además un estudio de tráfico que determine si es necesario establecer un trenzado entre ambas.

9.5.1.1 ACCESOS DE INSTALACIONES DE SERVICIOS.

Son los correspondientes a instalaciones de titularidad privada que albergan estaciones de servicio y unidades de suministro (definidas como tales en la normativa específica), restaurantes, hoteles, talleres mecánicos, cafeterías y, en general, cuantas otras satisfagan necesidades de los usuarios de la carretera.

Entre el acceso de entrada y el de salida a una instalación de servicios se dispondrá una isleta de separación de la carretera con un ancho mayor o igual que tres metros y cincuenta centímetros ( 3,50 m) manteniéndose siempre el ancho del arcén de la carretera. Esta isleta, que no será transitable por los vehículos, se podrá destinar a zona verde y en sus límites se colocarán bordillos que, en la zona denominada nariz, serán montables. Las plantaciones de la isleta no impedirán la visibilidad de los vehículos que quieran incorporarse a la carretera.

En las entradas a una carretera convencional, si la IMD de la carretera a la que se accede es menor que mil quinientos (< 1 500) vehículos/día y la velocidad de proyecto de la carretera es menor o igual que setenta kilómetros por hora ( 70 km/h), la cuña reducida para la entrada a dicha carretera podrá ser sustituida por una envolvente de giro o aproximaciones, cuando el acceso a la instalación no genere en el tramo afectado intensidades de tráfico elevadas, generalizadas o puntuales, ni incremente afecciones a la seguridad vial, a juicio del organismo titular de la carretera.

Para determinar las envolventes de giro en los accesos de instalaciones de servicios se considerará como vehículo patrón característico el autobús rígido.

9.5.1.2 ACCESOS DE EXPLOTACIONES DONDE SE DESARROLLEN ACTIVIDADES ECONÓMICAS QUE GENEREN IMORTANTES TRÁFICOS.

Son los correspondientes a edificaciones o predios, utilizados por una colectividad, o en los que se ubique un establecimiento destinado a la contratación de bienes o servicios, o fincas que sean objeto de una explotación económica de cualquier tipo y que generen importantes tráficos en dichos accesos. Cumplirán como mínimo las limitaciones indicadas en el epígrafe 9.5.1.1, con la salvedad de que el vehículo patrón característico deberá determinarse en función del tipo de actividad desarrollado y que no será obligatoria la implantación de la isleta de separación de la carretera.

9.5.1.3 ACCESOS DE CAMINOS AGRÍCOLAS Y OTRAS VÍAS PÚBLICAS SIN CONSIDERACIÓN DE CARRETERA.

Son los correspondientes a una carretera convencional desde caminos agrícolas y otras vías públicas que no tengan consideración de carretera. Para una IMD de la carretera convencional comprendida entre mil quinientos ( 1 500) y tres mil (< 3 000) vehículos/día, la cuña reducida podrá ser sustituida por una envolvente de giro o aproximaciones, cuando el acceso a la instalación no genere en el tramo afectado intensidades de tráfico elevadas, generalizadas o puntuales, ni incremente afecciones a la seguridad vial, a juicio del organismo titular de la carretera.

9.5.1.4 ACCESOS DE EDIFICACIONES RESIDENCIALES AISLADAS O FINCAS SIN UNA ACTIVIDAD ECONÓMICA QUE GENERE IMPORTANTES TRÁFICOS.

Son los correspondientes a una carretera convencional desde edificaciones residenciales aisladas o desde fincas sin una actividad económica que genere importantes tráficos en dichos accesos. Para una IMD comprendida entre mil quinientos ( 1 500) y tres mil (< 3 000) vehículos/día, la cuña reducida podrá ser sustituida por una envolvente de giro o aproximaciones, cuando el acceso a la instalación no genere en el tramo afectado intensidades de tráfico elevadas, generalizadas o puntuales, ni incremente afecciones a la seguridad vial, a juicio del organismo titular de la carretera.

Se procurará canalizar estos accesos mediante vías de servicio y, si por tratarse de un acceso aislado no resulta viable su construcción, se cumplirán, como mínimo, las limitaciones del epígrafe 9.5.1.3, con la salvedad de que el vehículo patrón característico será un turismo. Se justificará el posible acceso de un vehículo con mayores dimensiones.

9.5.2 ACCESOS EN VÍAS DE SERVICIO.

La entrada o la salida de una carretera, incluido el viario urbano, a una vía de servicio de otra carretera tendrá la consideración de conexión.

Cuando la IMD de la vía de servicio a la que se accede sea inferior a tres mil (< 3 000) vehículos/día, la cuña reducida a disponer para la entrada a dicha vía de servicio desde caminos agrícolas (y otras vías públicas que no tengan consideración de carretera) o desde edificaciones residenciales aisladas o desde fincas sin actividad económica podrá ser sustituida por una envolvente de giro o aproximaciones.

En una vía de servicio el acceso de una instalación de servicios o de una explotación donde se desarrolle una actividad económica que genere importantes tráficos se dispondrá con las características descritas en el epígrafe 9.5.1.1.

La distancia mínima entre un acceso y el acceso o conexión más próxima será mayor o igual que la visibilidad de parada del tramo y como mínimo sesenta metros ( 60,00 m). En vías de servicio en tramos urbanos (y excepcionalmente periurbanos) con limitación de velocidad menor o igual que cincuenta kilómetros por hora (≤50 km/h) se admitirá que la distancia mínima entre un acceso y la conexión o acceso más próximo sea mayor o igual que la visibilidad de parada del tramo.

Estas distancias mínimas no serás exigiblesentre accesos de caminos agrícolas (y otras vías públicas que no tengan consideración de carretera), de edificaciones residenciales aisladas o de fincas sin una actividad económica que genere importantes tráficos en el mismo si la velocidad de proyecto de la vía de servicio es menor o igual que sesenta kilómetros por hora (≤ 60 km/h). En esos casos, se admitirá que la distancia mínima entre accesos inmediatos sea la necesaria para desarrollar la geometría completa de cada uno de ellos sin que se intercepten, en cuyo caso habrán de unificarse

Se realizará un estudio para estimar la IMD para el año horizonte de veinte (20) años y la composición del tráfico, así como el establecimiento del vehículo patrón (Anexo 3) que se adopte como característico para la elección de las dimensiones geométricas del acceso.

9.6 LIMITACIONES EN TRAMOS CON CARRILES ADICIONALES, OTROS ELEMENTOS DE TRAZADO Y OBRAS CON SECCIONES TRANSVERSALES SINGULARES.

Sin perjuicio de otras limitaciones más restrictivas, y salvo la debida justificación, se evitará disponer conexiones o accesos en los tramos del tronco de una carretera donde se hayan dispuesto los elementos de trazado y las obras con secciones transversales especiales siguientes:

Estas limitaciones se aplicarán:

Las condiciones para disponer conexiones o accesos en tramos contiguos (anteriores o posteriores) a alguno de los elementos anteriormente citados se especifican en los epígrafes 9.6.1 a 9.6.4. Se considerarán tramos contiguos aquellos cuyas longitudes mínimas se establecen en la Tabla 9.4 definidas en función de la velocidad de proyecto del tramo.

Se evitará disponer conexiones o accesos en las vías de entrada y salida a una calzada anular en una longitud, medida desde el perímetro exterior de dicha calzada, menor que la establecida en la Tabla 9.4, en función de la velocidad de proyecto de las vías de entrada o de salida.

 

TABLA 9.4.

 

9.6.1 ELEMENTOS DE TRANSICIÓN DE LAS CONDICIONES DE CIRCULACIÓN Y CARRILES ADICIONALES.

A los efectos de determinar las distancias mínimas entre el inicio o el final de un elemento de transición de las condiciones de circulación o un carril adicional (apartado 8.1) y las secciones características iniciales o finales de otras conexiones o accesos, se considerarán las distancias exigibles a conexiones reflejadas en este capítulo, salvo que el carril adicional esté generado por un acceso (carriles de cambio de velocidad para entrada y para salida de un acceso) donde serán de aplicación las distancias relativas a accesos. También se considerarán estas distancias con respecto a otros elementos de trazado como pueden ser otros elementos de transición o carriles adicionales distintos respecto a los que se miden distancias, los túneles, las obras de paso, los apartaderos, las paradas de vehículos de transporte colectivo y los lechos de frenado.

Se podrán proyectar conexiones y accesos, previa justificación, en carriles adicionales en rampa y pendiente (solo para circulación lenta) y en carriles de uso preferente para vehículos de transporte colectivo. En estos supuestos, deberá cumplirse que la distancia mínima entre el final de la cuña de transición situada al inicio del carril adicional (o el comienzo de la cuña de transición situada al final del mismo) y la sección característica más próxima de la conexión o el acceso sea la indicada en la Tabla 9.4.

En plataformas o carriles especializados de uso exclusivo, también se podrán establecer, justificadamente, conexiones para los vehículos autorizados, debiendo exigirse las distancias incluidas en la Tabla 9.4.

9.6.2 APARTADEROS, PARADAS DE VEHÍCULOS DE TRANSPORTE COLECTIVO (BUS) Y LECHOS DE FRENADO.

A los efectos de aplicar limitaciones de distancias entre conexiones o accesos y apartaderos, paradas de vehículos de transporte colectivo y lechos de frenado, se considerarán estos elementos como accesos, con las siguientes salvedades:

9.6.3 TÚNELES, SOTERRAMIENTOS Y CUBRIMIENTOS.

No se dispondrán, en general, conexiones (o accesos si procediese por la clase de carretera) antes del inicio y después del final de un túnel a distancias inferiores a las indicadas en la Tabla 3.4.37 Las distancias al inicio o final del túnel se medirán desde la sección característica más próxima de la conexión o del acceso. En cada caso deberán considerarse las velocidades de proyecto de los tramos anterior y posterior al túnel debiendo comprobarse que se cumple lo especificado en el apartado 3.2 sobre visibilidad.

37 La Tabla 3.4, que corresponde a la distancia de decisión, establece la distancia recorrida en diez segundos (10 s) a la velocidad de proyecto.

Si determinadas circunstancias impidiesen que puedan respetarse estas distancias, se podrán establecer, justificadamente, conexiones (en ningún caso accesos) a menores distancias del inicio y final de un túnel (Tabla 3.4), si se cumplen las siguientes condiciones:

En todo caso, cualquier conexión o acceso que se disponga antes del inicio o después del final de un túnel deberá ser compatible con la señalización vertical (fija o variable).

La posibilidad de conexiones en el interior de un túnel será restringida a tramos urbanos y periurbanos, requiriendo una justificación de la viabilidad de su señalización y de su efecto sobre el nivel de servicio de la carretera.

Las limitaciones y condiciones anteriores serán de aplicación a soterramientos y cubrimientos.

Las anteriores condiciones se exigirán también en el caso de modificar el número de carriles básicos y adicionales del tronco, salvo para los generados por accesos, que se tratarán como tales.

9.6.4 OBRAS DE PASO DE SECCIÓN TRANSVERSAL REDUCIDA.

En el caso de obras de paso de longitud mayor o igual que cien metros ( 100 m) y de sección transversal reducida respecto de la existente en los tramos contiguos, se evitará disponer conexiones (en ningún caso accesos) en una distancia, medida desde las secciones inicial o final de dicha obra de paso, inferior a la que resulte de la aplicación de la Tabla 9.4.

Si a pesar de ello fuese necesario proyectar en los tramos contiguos a las citadas obras una conexión (en ningún caso accesos) a una distancia de la obra de paso inferior a la que resulte de la aplicación de la Tabla 9.4, el carril de cambio de velocidad correspondiente se prolongará como carril adicional a lo largo de la obra de paso hasta una distancia de dicha obra de paso mayor o igual que la indicada en la Tabla 9.4. Adicionalmente se dispondrán las cuñas de transición (Tabla 8.1) correspondientes.

Si la mencionada obra de paso de sección transversal reducida se sitúa en un tramo urbano o periurbano, y no fuese posible cumplir las anteriores condiciones, la única limitación será que no se dispongan conexiones (en ningún caso accesos) en la longitud de transición de la sección transversal.

En obras de paso de longitud menor que cien metros (< 100 m) y de sección transversal reducida respecto de la existente en los tramos contiguos se aplicarán también las anteriores condiciones.

En todo caso no se dispondrán nuevas conexiones o nuevos accesos cuya señalización no pueda realizarse por la existencia de la propia obra de paso.